カナディアンログハウス(フルログ)
トップページ>カナディアンログハウス(フルログ)

 週末別荘。管理別荘地内で、冬でも安心
テラスでコーヒーをいただく ・・・・・
遠方から家族が遊びにきて、賑やかに過ごす時も
テラスを使ってホームパーティー ・・・・・・・・・・・・・
四季の自然のうつろいを、より身近に感じて過ごせます。

写真1 写真1
図面1
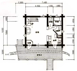
図面2
1 F
2 F

■オーナーの声 <海外生活が長かったSさん・60代>
『もう10年早く気がつけばよかった、ログハウスがこんなにおもしろいとは思わなかった。 』

トップページへ戻る
Copyright (C) 2010.EISHIN Construction All Rights Reserved.
株式会社栄新工務店(輸入登録業者)
広島市佐伯区利松2丁目22-25
TEL :(082)928-8135 FAX : (082)928-6522
E-mail : eishinlog@titan.ocn.ne.jp